1. Home
  2. Search Listings
  3. 15420 Sw 136th 14 Miami, FL - 33196-2672
  • MLS® #: A11857904
  • 15420 Sw 136th 14
  • Miami, FL 33196-2672
  • $619,000
  • Business

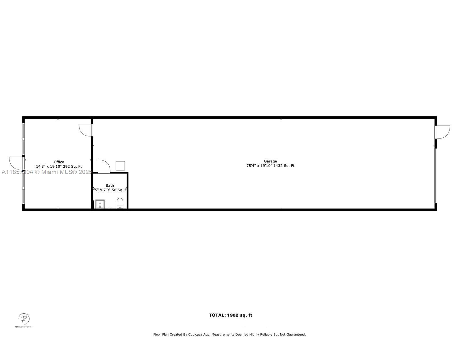
This versatile office-warehouse is ideally situated in Miami, across from the Miami Executive Airport, offering exceptional visibility and access. Total Sqft 1840 Sqft. With its strategic location and flexible layout, the property is perfect for a variety of businesses, including restaurants, medical offices, retail operations, and even auto body shops—one of the few plazas in the area that permits such use. The building features a well-designed layout with a retail office entrance at the front, a spacious warehouse at the rear, and a back entrance. Additionally, the property includes bathroom facilities. With its prime location and versatile design, this property presents an unparalleled opportunity for businesses looking to establish themselves in one of Miami’s most sought-after areas.

View Virtual Tour

Essential Information

  • MLS® #A11857904
  • Price$619,000
  • CAD Dollar$870,450
  • UK Pound£471,507
  • Euro€537,633
  • HOA Fees324
  • Bathrooms0.00
  • Acres0.00
  • Year Built2007
  • TypeBusiness
  • Sub-TypeIndustrial
  • StatusActive

Community Information

  • Address15420 Sw 136th 14
  • Area59
  • CityMiami
  • CountyMiami-Dade
  • StateFL
  • Zip Code33196-2672

Amenities

  • ParkingCommon, Free Parking

Interior

  • InteriorConcrete
  • HeatingCentral, Electric
  • # of Stories1
  • StoriesOne

Exterior

  • RoofConcrete
  • ConstructionBlock
  • Office: One Sotheby's International Realty

Property Location

Please provide a valid email address.

15420 Sw 136th 14 on www.jupiteroceanfrontcondos.us

Offered at the current list price of $619,000, this home for sale at 15420 Sw 136th 14 features 0 bedrooms and 0 bathrooms. This real estate listing is located in of Miami, FL 33196-2672 . 15420 Sw 136th 14 is listed under the MLS ID of A11857904 and has been on the Miami real estate market for 75 days.

Facts About Miami, FL

Each winter during Carnaval Miami, salsa tunes blare and the smell of spicy chorizo fills the air on Calle Ocho, the commercial thoroughfare and heart of Miami's Little Havana. The roaring street festival, which culminates in the world's longest conga line, is the last of 10 events comprising the Latin-spiked Carnaval.

Similar Listings to 15420 Sw 136th 14

Photo of Listing #A11778032
  • MLS® #: A11778032
  • 13715 Sw 139th Ct 104-a
  • Miami, FL 33186-5502
  • $550,000
  • Business
Add as Favorite
Photo of Listing #A11833036
  • MLS® #: A11833036
  • 13810 Sw 142nd Ave 36
  • Miami, FL 33186-7315
  • $560,000
  • Business
Add as Favorite
Photo of Listing #RX-11113186
  • MLS® #: RX-11113186
  • 13977 Sw 140th Street #105
  • Miami, FL 33186
  • $700,000
  • 1,090 SqFt, 1.4 Acres
  • Business
Add as Favorite
Photo of Listing #A11860826
  • MLS® #: A11860826
  • 12251 Sw 128th Ct 103a
  • Miami, FL 33186-4780
  • $595,000
  • Business
Add as Favorite

The data relating to real estate on this web site comes in part from the Internet Data Exchange program of the MLS of the REALTOR® Association of Greater Miami and the Beaches, and is updated as of November 4th, 2025 at 1:24am CST (date/time).

All information is deemed reliable but not guaranteed by the MLS and should be independently verified. All properties are subject to prior sale, change, or withdrawal. Neither listing broker(s) nor Waterfront Properties and Club Communities shall be responsible for any typographical errors, misinformation, or misprints, and shall be held totally harmless from any damages arising from reliance upon these data. © 2025 MLS of RAMB.

The information being provided is for consumers' personal, non-commercial use and may not be used for any purpose other than to identify prospective properties consumers may be interested in purchasing