1. Home
  2. Search Listings
  3. 6451 E Rogers Cir Boca Raton, FL - 33487-2601
NEW
  • MLS® #: A11904098
  • 6451 E Rogers Cir
  • Boca Raton, FL 33487-2601
  • $20
  • Business

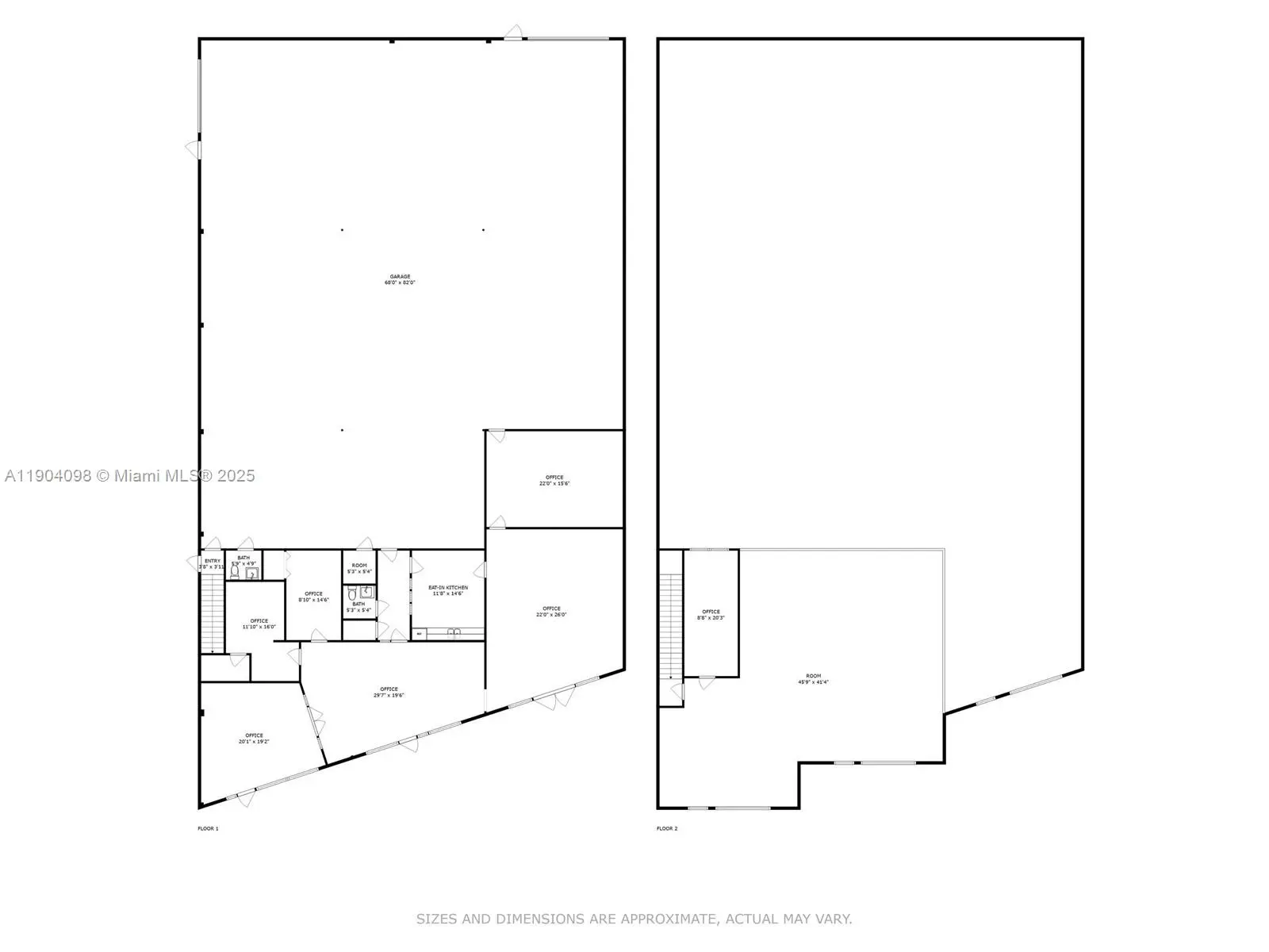
Located in Boca’s industrial district, this one-story warehouse space with mezzanine (Bay 1 & 2 combined) presents an exceptional leasing opportunity for businesses in manufacturing, warehousing, and corporate services. With 8000 SF, the property is designed to accommodate diverse industrial needs with 10 well-appointed retail offices fronting E. Rogers Circle. The layout includes an eat-in kitchen for employee convenience, 1 bathroom in the office showroom plus 1 bathroom in the warehouse, and a spacious warehouse (68' x 82') built with 28 ft ceilings to support storage and logistics operations. Zoned M-3 (Manufacturing Industrial), the warehouse can meet a wide range of permitted commercial uses, making it a valuable asset in one of South Florida’s most sought-after industrial hubs..

View Virtual Tour

Essential Information

  • MLS® #A11904098
  • Price$20
  • CAD Dollar$27
  • UK Pound£15
  • Euro€17
  • Bathrooms0.00
  • Acres0.00
  • Year Built1988
  • TypeBusiness
  • Sub-TypeIndustrial
  • StatusActive

Community Information

  • Address6451 E Rogers Cir
  • Area4390
  • CityBoca Raton
  • CountyPalm Beach
  • StateFL
  • Zip Code33487-2601

Amenities

  • ParkingGuest, Common
  • Is WaterfrontYes
  • WaterfrontLake Front

Interior

  • InteriorConcrete, Laminate
  • # of Stories1
  • StoriesOne

Exterior

  • ConstructionBlock
  • Office: Floridian First Realty Corp

Property Location

Please provide a valid email address.

6451 E Rogers Cir on www.jupiteroceanfrontcondos.us

Offered at the current list price of $20, this home for sale at 6451 E Rogers Cir features 0 bedrooms and 0 bathrooms. This real estate listing is located in of Boca Raton, FL 33487-2601 . 6451 E Rogers Cir is listed under the MLS ID of A11904098 and has been on the Boca Raton real estate market for 0 days.

The data relating to real estate on this web site comes in part from the Internet Data Exchange program of the MLS of the REALTOR® Association of Greater Miami and the Beaches, and is updated as of December 25th, 2025 at 12:00pm CST (date/time).

All information is deemed reliable but not guaranteed by the MLS and should be independently verified. All properties are subject to prior sale, change, or withdrawal. Neither listing broker(s) nor Waterfront Properties and Club Communities shall be responsible for any typographical errors, misinformation, or misprints, and shall be held totally harmless from any damages arising from reliance upon these data. © 2025 MLS of RAMB.

The information being provided is for consumers' personal, non-commercial use and may not be used for any purpose other than to identify prospective properties consumers may be interested in purchasing