1. Home
  2. Search Listings
  3. 1733 Sunrise Dr Big Pine, FL - 33043-5008
NEW
  • MLS® #: A11916862
  • 1733 Sunrise Dr
  • Big Pine, FL 33043-5008
  • $2,069,000
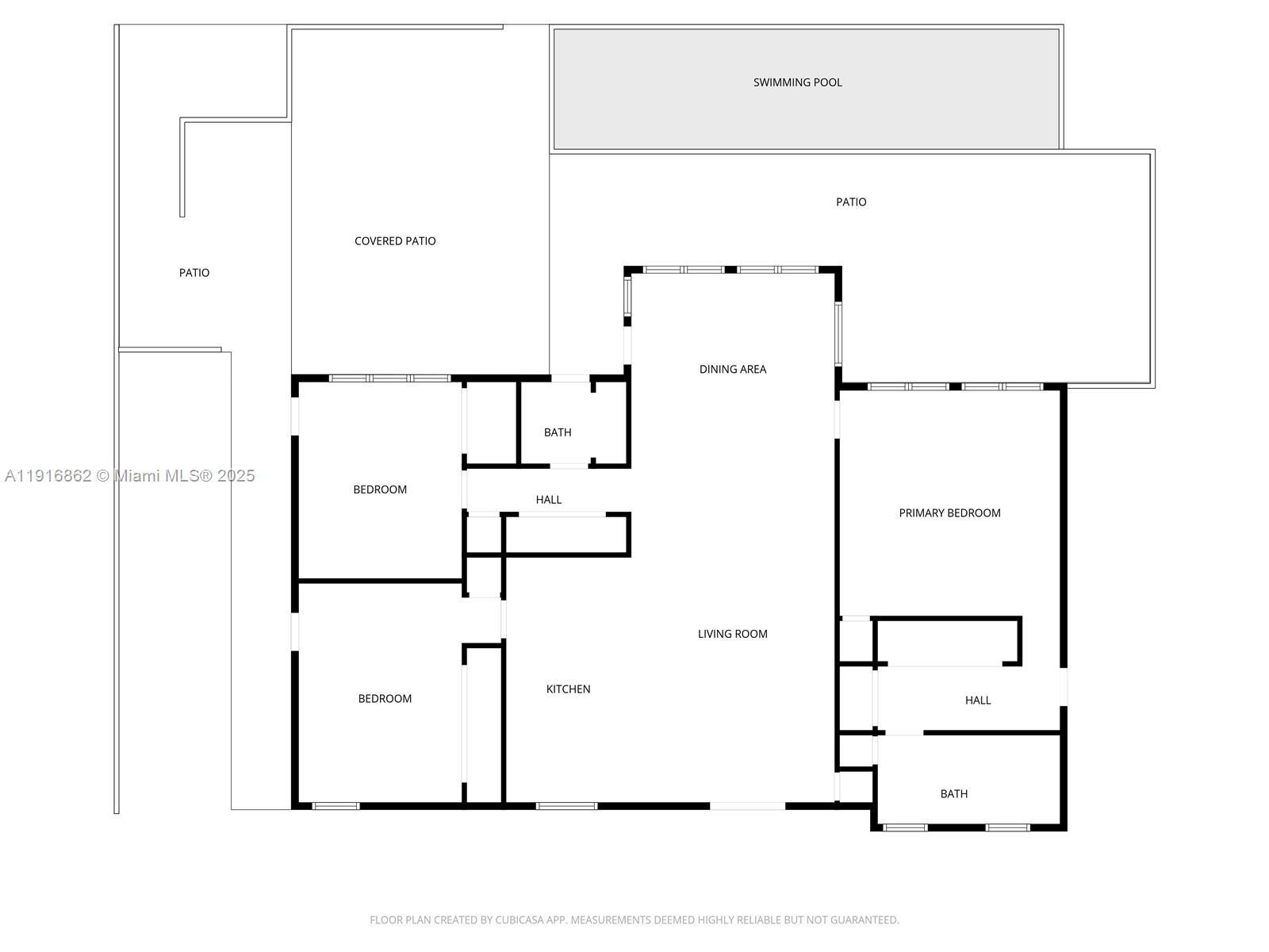
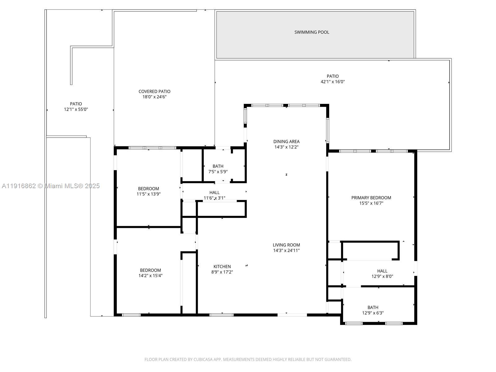
  • 3 Beds, 2 Bath, 1,849 SqFt
  • Residential

Beautiful Waterfront Ocean & Canal property 3BD/2BA concrete block (CBS) direct ocean and canal access Property sits at 10 ft. elevation lot and features a durable aluminum roof, impact-resistant windows, and low-maintenance construction built for longevity in the Florida Keys. A 75 ft concrete dock, ideal for larger vessels, water toys, and fishing trips straight to open water. Spacious outdoor area provides room for entertaining, relaxing, and enjoying the coastal lifestyle. Interior highlights include an open living/dining layout with abundant natural light, a functional kitchen, and comfortable bedroom spaces. Perfect for full-time living, a vacation retreat, or investment property. Strong construction and unmatched waterfront access make this a must-see Keys home.

View Virtual Tour

Essential Information

  • MLS® #A11916862
  • Price$2,069,000
  • CAD Dollar$2,914,294
  • UK Pound£1,571,964
  • Euro€1,787,682
  • HOA Fees250
  • Bedrooms3
  • Bathrooms2.00
  • Full Baths2
  • Square Footage1,849
  • Year Built1975
  • TypeResidential
  • Sub-TypeSingle Family Residence
  • StyleOne Story, Contemporary/Modern
  • StatusActive

Community Information

  • Address1733 Sunrise Dr
  • Area98 Florida Keys
  • SubdivisionTROPICAL BAY
  • CityBig Pine
  • CountyMonroe
  • StateFL
  • Zip Code33043-5008

Amenities

  • UtilitiesCable Available
  • FeaturesBoat Facilities
  • Parking Spaces4
  • ViewCanal, Bay
  • Is WaterfrontYes
  • Pets AllowedNoPetRestrictions,Yes

Parking

Circular Driveway, Covered, Driveway, Attached Carport

Waterfront

Canal Front, Ocean Front, Bay Front, No Fixed Bridges

Interior

  • InteriorOther, Marble
  • HeatingCentral, Electric
  • CoolingCentral Air, Electric
  • # of Stories1

Appliances

Dryer, Dishwasher, Electric Range, Electric Water Heater, Microwave, Refrigerator, Washer

Exterior

  • WindowsImpact Glass
  • RoofAluminum
  • ConstructionBlock, Brick
  • FoundationRaised

Exterior Features

Barbecue, Deck, Lighting, Security/High Impact Doors

  • Office: Florida Realty Of Miami Corp

Property Location

Please provide a valid email address.

1733 Sunrise Dr on www.jupiteroceanfrontcondos.us

Offered at the current list price of $2,069,000, this home for sale at 1733 Sunrise Dr features 3 bedrooms and 2 bathrooms. This real estate listing is located in TROPICAL BAY of Big Pine, FL 33043-5008 and is approximately 1,849 square feet. 1733 Sunrise Dr is listed under the MLS ID of A11916862 and has been on the Big Pine real estate market for 2 days.

Similar Listings to 1733 Sunrise Dr

Photo of Listing #A11711652
  • MLS® #: A11711652
  • 30468 Oleander Blvd
  • Big Pine, FL 33043-4738
  • $2,450,000
  • 3 Bed, 3 Bath, 2,486 SqFt
  • Residential
Add as Favorite

The data relating to real estate on this web site comes in part from the Internet Data Exchange program of the MLS of the REALTOR® Association of Greater Miami and the Beaches, and is updated as of November 26th, 2025 at 8:02pm CST (date/time).

All information is deemed reliable but not guaranteed by the MLS and should be independently verified. All properties are subject to prior sale, change, or withdrawal. Neither listing broker(s) nor Waterfront Properties and Club Communities shall be responsible for any typographical errors, misinformation, or misprints, and shall be held totally harmless from any damages arising from reliance upon these data. © 2025 MLS of RAMB.

The information being provided is for consumers' personal, non-commercial use and may not be used for any purpose other than to identify prospective properties consumers may be interested in purchasing