1. Home
  2. Search Listings
  3. 14256 Sw 92nd St Miami, FL - 33186-7804
  • MLS® #: A11937279
  • 14256 Sw 92nd St
  • Miami, FL 33186-7804
  • $660,000
  • 4 Beds, 4 Bath, 2,506 SqFt
  • Residential

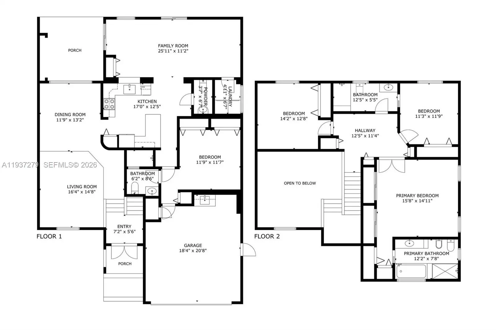
Very spacious 4-bedroom, 3.5-bathroom home in the Hammocks area with no HOA. The home features 1 bedroom and 1.5 bathrooms downstairs, making it an ideal layout for an in-law's quarters or a potential income-producing space. The living area features high ceilings, a sunken living room, and lots of natural light. The kitchen has granite countertops and updated cabinets with stainless steel appliances and a tankless water heater. Large master suite upstairs with an en-suite bath and jetted tub, and lots of natural light. With Publix, Target, Walmart, parks, and plenty of restaurants just minutes away. The home needs some updating and repairs; the roof is original, and the flooring upstairs needs to be replaced, along with the 2nd HVAC upstairs. There is considerable potential to make this home your new oasis by adding your personal touches.

View Virtual Tour

Essential Information

  • MLS® #A11937279
  • Price$660,000
  • CAD Dollar$901,037
  • UK Pound£486,945
  • Euro€557,340
  • Bedrooms4
  • Bathrooms4.00
  • Full Baths3
  • Half Baths1
  • Square Footage2,506
  • Year Built1994
  • TypeResidential
  • Sub-TypeSingle Family Residence
  • StyleOther, Two Story
  • StatusPending

Community Information

  • Address14256 Sw 92nd St
  • Area59
  • SubdivisionSHOMA HOMES AT KENDALL
  • CityMiami
  • CountyMiami-Dade
  • StateFL
  • Zip Code33186-7804

Amenities

  • FeaturesStreet Lights, Sidewalks
  • ParkingAttached, Garage, Other
  • # of Garages2
  • GaragesGarage Door Opener
  • ViewNone
  • Pets AllowedNoPetRestrictions,Yes

Utilities

Cable Available, Underground Utilities

Interior

  • InteriorTile
  • HeatingCentral
  • # of Stories2
  • StoriesTwo

Interior Features

Bedroom on Main Level, First Floor Entry, Garden Tub/Roman Tub, Vaulted Ceiling(s), Walk-In Closet(s)

Appliances

Dryer, Dishwasher, Electric Range, Electric Water Heater, Disposal, Microwave, Refrigerator, Washer

Cooling

Central Air, Ceiling Fan(s), Wall/Window Unit(s)

Exterior

  • Exterior FeaturesOther, Patio
  • WindowsMetal, Other, Single Hung
  • RoofFlat, Tile
  • ConstructionBlock, Frame, Stucco

School Information

  • ElementaryPepper; Claude
  • MiddleHammocks
  • HighMiami Sunset
  • Office: Your Casita Realty, Llc.
Please provide a valid email address.

14256 Sw 92nd St on www.jupiteroceanfrontcondos.us

Offered at the current list price of $660,000, this home for sale at 14256 Sw 92nd St features 4 bedrooms and 4 bathrooms. This real estate listing is located in SHOMA HOMES AT KENDALL of Miami, FL 33186-7804 and is approximately 2,506 square feet. 14256 Sw 92nd St is listed under the MLS ID of A11937279 and has been on the Miami real estate market for 42 days.

Facts About Miami, FL

Each winter during Carnaval Miami, salsa tunes blare and the smell of spicy chorizo fills the air on Calle Ocho, the commercial thoroughfare and heart of Miami's Little Havana. The roaring street festival, which culminates in the world's longest conga line, is the last of 10 events comprising the Latin-spiked Carnaval.

Similar Listings to 14256 Sw 92nd St

Photo of Listing #A11625323
  • MLS® #: A11625323
  • 12414 Sw 213th St
  • Miami, FL 33177-5944
  • $713,000
  • 3 Bed, 2 Bath, 1,539 SqFt
  • Residential
Add as Favorite
Photo of Listing #A11719970
  • MLS® #: A11719970
  • 20333 Sw 122nd Pl
  • Miami, FL 33177-5220
  • $749,000
  • 4 Bed, 3 Bath, 1,967 SqFt
  • Residential
Add as Favorite
Photo of Listing #A11522318
  • MLS® #: A11522318
  • 451 Nw 30th Pl
  • Miami, FL 33125-4223
  • $590,000
  • 2 Bed, 1 Bath, 1,135 SqFt
  • Residential
Add as Favorite
Photo of Listing #A11752711
  • MLS® #: A11752711
  • 9251 Little River Blvd
  • Miami, FL 33147-3236
  • $599,990
  • 3 Bed, 2 Bath, 1,115 SqFt
  • Residential
Add as Favorite

The data relating to real estate on this web site comes in part from the Internet Data Exchange program of the MLS of the REALTOR® Association of Greater Miami and the Beaches, and is updated as of February 18th, 2026 at 3:49pm CST (date/time).

All information is deemed reliable but not guaranteed by the MLS and should be independently verified. All properties are subject to prior sale, change, or withdrawal. Neither listing broker(s) nor Waterfront Properties and Club Communities shall be responsible for any typographical errors, misinformation, or misprints, and shall be held totally harmless from any damages arising from reliance upon these data. © 2026 MLS of RAMB.

The information being provided is for consumers' personal, non-commercial use and may not be used for any purpose other than to identify prospective properties consumers may be interested in purchasing