1. Home
  2. Search Listings
  3. 12010 Sw 214th Ter Miami, FL - 33177
REDUCED
  • MLS® #: A11938439
  • 12010 Sw 214th Ter
  • Miami, FL 33177
  • $379,990
  • 0.14 Acres
  • Land

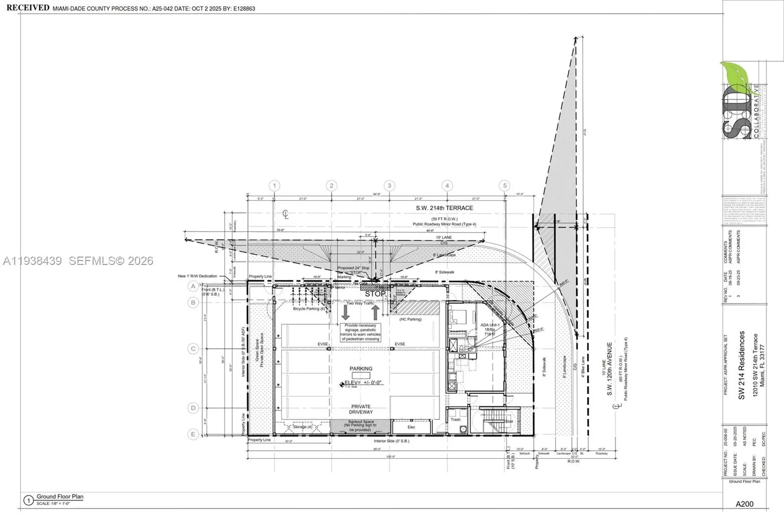
100% SITE PLAN APPROVED PROJECT. 8 all market rate units (can be sold as individual condos if desired) of 2/2's with 8 parking spaces. 8 inch water line/ 12 inch sewer abutting property and ready to connect no costly extensions needed. 2nd option for 25 units / 6 stories was approved in pre-app with the planning department if the buyer is interested. Blocks from the $1 billion redevelopment project Southplace City Center a "city within a city," featuring 5,000 residential units, 500,000sqft retail, and a hotel. A lot of development in planning within two blocks (see photo). Not in a flood zone. Please email me for a copy of the full site plan, but floor plan and elevations are provided in the attachments. LOWEST PRICED PER SQ FT FOR THIS ZONING IN 33177 or 33170.

View Virtual Tour

Essential Information

  • MLS® #A11938439
  • Price$379,990
  • CAD Dollar$518,763
  • UK Pound£280,365
  • Euro€320,904
  • Bathrooms0.00
  • Acres0.14
  • TypeLand
  • Sub-TypeResidential
  • StatusActive

Community Information

  • Address12010 Sw 214th Ter
  • Area69
  • SubdivisionDIXIE PINES 2ND REV
  • CityMiami
  • CountyMiami-Dade
  • StateFL
  • Zip Code33177

Exterior

  • Lot Description105x57
  • Office: Zilla Real Estate, Inc
Please provide a valid email address.

12010 Sw 214th Ter on www.jupiteroceanfrontcondos.us

Offered at the current list price of $379,990, this home for sale at 12010 Sw 214th Ter features bedrooms and 0 bathrooms. This real estate listing is located in DIXIE PINES 2ND REV of Miami, FL 33177 . 12010 Sw 214th Ter is listed under the MLS ID of A11938439 and has been on the Miami real estate market for 39 days.

Facts About Miami, FL

Each winter during Carnaval Miami, salsa tunes blare and the smell of spicy chorizo fills the air on Calle Ocho, the commercial thoroughfare and heart of Miami's Little Havana. The roaring street festival, which culminates in the world's longest conga line, is the last of 10 events comprising the Latin-spiked Carnaval.

Similar Listings to 12010 Sw 214th Ter

Photo of Listing #A11933069
  • MLS® #: A11933069
  • 193xx Sw 127 Ct
  • Miami, FL 33177
  • $389,000
  • 0.36 Acres
  • Land
Add as Favorite
Photo of Listing #A11464970
  • MLS® #: A11464970
  • 6501 Sw 125th Ave
  • Miami, FL 33183-2521
  • $4,100,000
  • 4.87 Acres
  • Land
Add as Favorite
Photo of Listing #A11789460
  • MLS® #: A11789460
  • 336 Nw 10th Ave
  • Miami, FL 33128-1219
  • $4,000,000
  • 5000 Acres
  • Land
Add as Favorite

The data relating to real estate on this web site comes in part from the Internet Data Exchange program of the MLS of the REALTOR® Association of Greater Miami and the Beaches, and is updated as of February 18th, 2026 at 3:49pm CST (date/time).

All information is deemed reliable but not guaranteed by the MLS and should be independently verified. All properties are subject to prior sale, change, or withdrawal. Neither listing broker(s) nor Waterfront Properties and Club Communities shall be responsible for any typographical errors, misinformation, or misprints, and shall be held totally harmless from any damages arising from reliance upon these data. © 2026 MLS of RAMB.

The information being provided is for consumers' personal, non-commercial use and may not be used for any purpose other than to identify prospective properties consumers may be interested in purchasing