1. Home
  2. Search Listings
  3. 5047 W Hummingbird Dr La Belle, FL - 33935
  • MLS® #: A11945697
  • 5047 W Hummingbird Dr
  • La Belle, FL 33935
  • $33,500
  • 0.23 Acres
  • Land

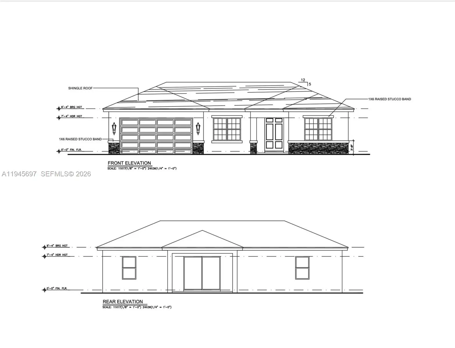
Unique opportunity to begin construction right away with no entitlement delays or unnecessary holding costs. Three adjacent lots located in the fast-growing Port LaBelle area offer strong resale potential and an efficient build setup ideal for builders and investors. Each lot is fully entitled and ready to go, including an approved building permit, impact fees already waived (approximately $7,000 in savings), approved septic permit, paid waste agreements, and completed survey, site plan, and architectural plans. The approved home plan features 1,305 square feet of living space with 3 bedrooms, 2 bathrooms, a 2-car garage, and a covered lanai. Vaulted ceilings in the main living area create an open, light-filled layout. A rear easement adds separation and privacy from neighboring properties. The seller can also construct the home using the approved plans, providing a streamlined turnkey construction option. Based on recent comparable new construction, the completed home would be competitively priced under $295,000 while still supporting a profitable project. Subcontractor contacts, construction budgets, and lender referrals are available for qualified buyers. All permits and approvals can be transferred into the buyer’s name at closing.

View Virtual Tour

Essential Information

  • MLS® #A11945697
  • Price$33,500
  • CAD Dollar$45,291
  • UK Pound£24,515
  • Euro€28,124
  • Bathrooms0.00
  • Acres0.23
  • TypeLand
  • Sub-TypeResidential
  • StatusActive

Community Information

  • Address5047 W Hummingbird Dr
  • Area5940 Florida Other
  • SubdivisionPT LaBELLE UNIT 3
  • CityLa Belle
  • CountyHendry
  • StateFL
  • Zip Code33935
  • Office: Knowledge Base Real Estate
Please provide a valid email address.

5047 W Hummingbird Dr on www.jupiteroceanfrontcondos.us

Offered at the current list price of $33,500, this home for sale at 5047 W Hummingbird Dr features bedrooms and 0 bathrooms. This real estate listing is located in PT LaBELLE UNIT 3 of La Belle, FL 33935 . 5047 W Hummingbird Dr is listed under the MLS ID of A11945697 and has been on the La Belle real estate market for 26 days.

Similar Listings to 5047 W Hummingbird Dr

Photo of Listing #A11194222
  • MLS® #: A11194222
  • 5029 Se Tradewinds Cir
  • La Belle, FL 33935
  • $35,000
  • 0.25 Acres
  • Land
Add as Favorite
Photo of Listing #A11945701
  • MLS® #: A11945701
  • 5049 W Hummingbird Dr
  • La Belle, FL 33935
  • $33,500
  • 0.23 Acres
  • Land
Add as Favorite
Photo of Listing #A11945702
  • MLS® #: A11945702
  • 5045 W Hummingbird Dr
  • La Belle, FL 33935
  • $33,500
  • 0.23 Acres
  • Land
Add as Favorite
Photo of Listing #A11862992
  • MLS® #: A11862992
  • 7040 Lotus Circle
  • La Belle, FL 33935
  • $35,000
  • 0.23 Acres
  • Land
Add as Favorite

The data relating to real estate on this web site comes in part from the Internet Data Exchange program of the MLS of the REALTOR® Association of Greater Miami and the Beaches, and is updated as of February 11th, 2026 at 7:35pm CST (date/time).

All information is deemed reliable but not guaranteed by the MLS and should be independently verified. All properties are subject to prior sale, change, or withdrawal. Neither listing broker(s) nor Waterfront Properties and Club Communities shall be responsible for any typographical errors, misinformation, or misprints, and shall be held totally harmless from any damages arising from reliance upon these data. © 2026 MLS of RAMB.

The information being provided is for consumers' personal, non-commercial use and may not be used for any purpose other than to identify prospective properties consumers may be interested in purchasing