1. Home
  2. Search Listings
  3. 5049 W Hummingbird Dr La Belle, FL - 33935
  • MLS® #: A11945701
  • 5049 W Hummingbird Dr
  • La Belle, FL 33935
  • $33,350
  • 0.23 Acres
  • Land

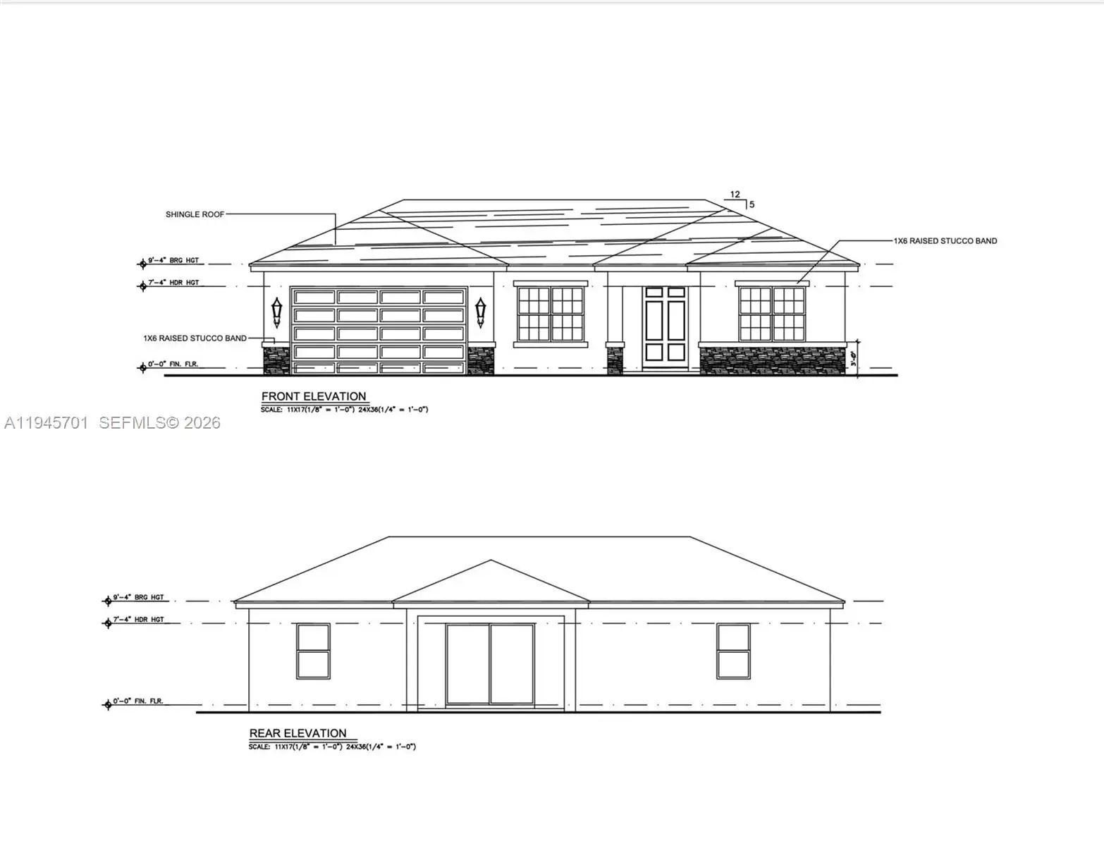
Opportunity to break ground immediately on three side-by-side, build-ready lots in Port LaBelle, a rapidly expanding market known for new construction and growing demand. This setup offers efficient execution and strong resale potential for builders and investors alike. The property is fully approved with building permits in place, impact fees waived (nearly $7,000 saved), septic permits approved, waste agreements paid, and all required surveys, site plans, and architectural drawings completed. Approved plans include a 1,305 square foot single-family home with 3 bedrooms, 2 bathrooms, a 2-car garage, and a covered lanai. The main living area features vaulted ceilings that enhance natural light and overall openness. A rear easement provides additional privacy and spacing. The seller also offers to build the home for the buyer using the approved plans, creating a simplified turnkey path from lot to completed residence. Market comps in the area support a competitive resale strategy under $295,000 while preserving healthy margins. Subcontractor lists, budget details, and lender referrals are available for qualified buyers. Permits and approvals may be transferred at closing.

View Virtual Tour

Essential Information

  • MLS® #A11945701
  • Price$33,350
  • CAD Dollar$45,365
  • UK Pound£24,480
  • Euro€28,113
  • Bathrooms0.00
  • Acres0.23
  • TypeLand
  • Sub-TypeResidential
  • StatusActive

Community Information

  • Address5049 W Hummingbird Dr
  • Area5940 Florida Other
  • SubdivisionPT LaBELLE UNIT 3
  • CityLa Belle
  • CountyHendry
  • StateFL
  • Zip Code33935
  • Office: Knowledge Base Real Estate
Please provide a valid email address.

5049 W Hummingbird Dr on www.jupiteroceanfrontcondos.us

Offered at the current list price of $33,350, this home for sale at 5049 W Hummingbird Dr features bedrooms and 0 bathrooms. This real estate listing is located in PT LaBELLE UNIT 3 of La Belle, FL 33935 . 5049 W Hummingbird Dr is listed under the MLS ID of A11945701 and has been on the La Belle real estate market for 29 days.

Similar Listings to 5049 W Hummingbird Dr

Photo of Listing #A11194222
  • MLS® #: A11194222
  • 5029 Se Tradewinds Cir
  • La Belle, FL 33935
  • $35,000
  • 0.25 Acres
  • Land
Add as Favorite
Photo of Listing #A11862992
  • MLS® #: A11862992
  • 7040 Lotus Circle
  • La Belle, FL 33935
  • $35,000
  • 0.23 Acres
  • Land
Add as Favorite
Photo of Listing #A11927312
  • MLS® #: A11927312
  • 800 Berkshire
  • La Belle, FL 33935
  • $36,000
  • Land
Add as Favorite
Photo of Listing #A11929081
  • MLS® #: A11929081
  • 171 Carousel Ave
  • La Belle, FL 33935
  • $32,000
  • 0.27 Acres
  • Land
Add as Favorite

The data relating to real estate on this web site comes in part from the Internet Data Exchange program of the MLS of the REALTOR® Association of Greater Miami and the Beaches, and is updated as of February 13th, 2026 at 5:05pm CST (date/time).

All information is deemed reliable but not guaranteed by the MLS and should be independently verified. All properties are subject to prior sale, change, or withdrawal. Neither listing broker(s) nor Waterfront Properties and Club Communities shall be responsible for any typographical errors, misinformation, or misprints, and shall be held totally harmless from any damages arising from reliance upon these data. © 2026 MLS of RAMB.

The information being provided is for consumers' personal, non-commercial use and may not be used for any purpose other than to identify prospective properties consumers may be interested in purchasing