1. Home
  2. Search Listings
  3. 366 Alhambra Pl West Palm Beach, FL - 33405
  • MLS® #: RX-11099233
  • 366 Alhambra Pl
  • West Palm Beach, FL 33405
  • $3,300,000
  • 4 Beds, 4 Bath, 3,570 SqFt
  • Residential

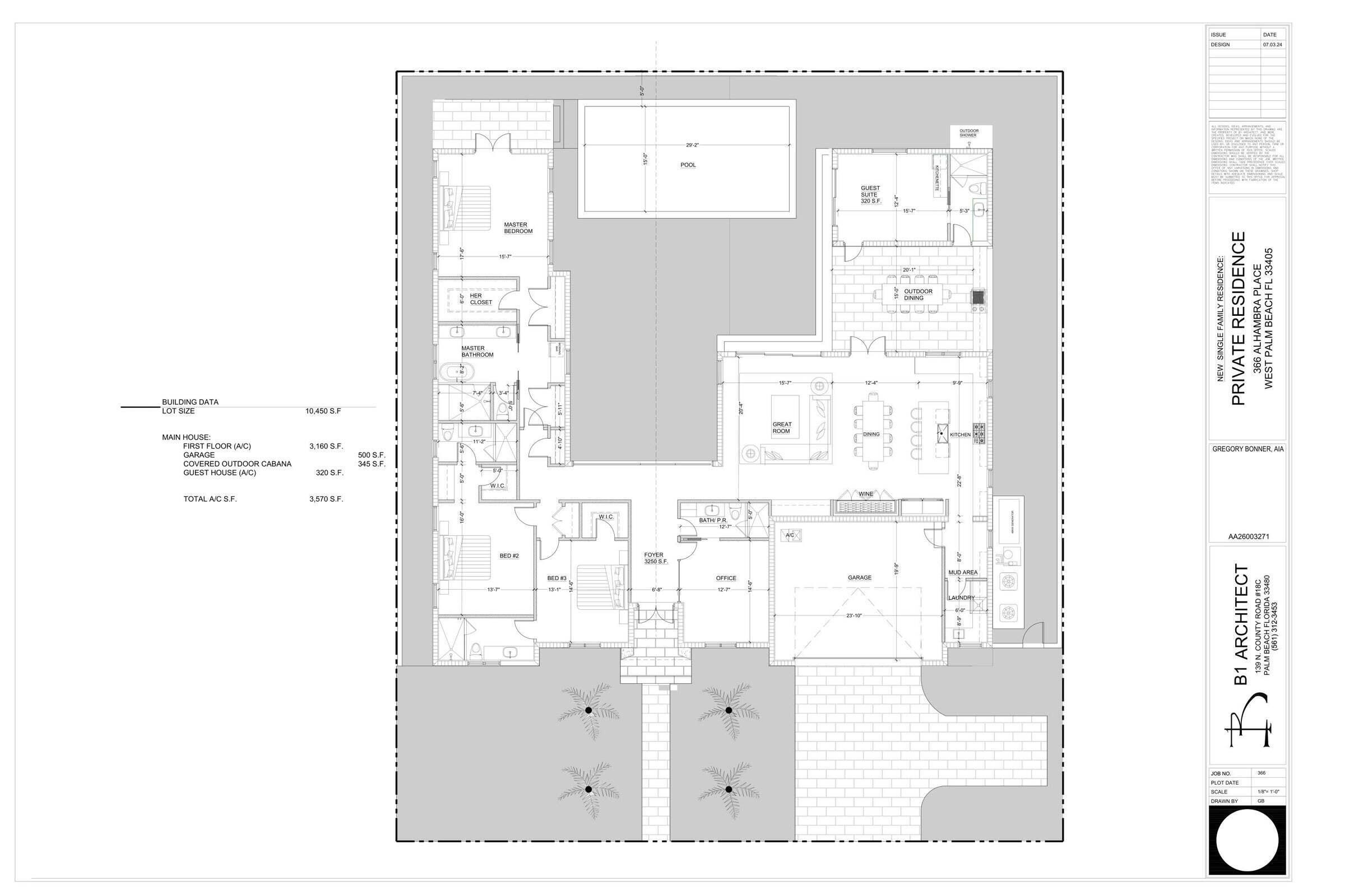
Build to suit. Currently a vacant lot. Large Lot 100x105 . Seller Financing available. The rendering was done by B1 Architects. Large 2 Story Floor Plan also available.

View Virtual Tour

Essential Information

  • MLS® #RX-11099233
  • Price$3,300,000
  • CAD Dollar$4,654,815
  • UK Pound£2,518,893
  • Euro€2,864,707
  • HOA Fees0.00
  • Bedrooms4
  • Bathrooms4.00
  • Full Baths4
  • Square Footage3,570
  • Year Built2025
  • TypeResidential
  • Sub-TypeSingle Family Detached
  • RestrictionsNone
  • Style< 4 Floors, Traditional
  • StatusActive
  • HOPANo Hopa

Community Information

  • Address366 Alhambra Pl
  • Area5440
  • SubdivisionHOMEWOOD WPB IN
  • CityWest Palm Beach
  • CountyPalm Beach
  • StateFL
  • Zip Code33405

Amenities

  • # of Garages2
  • ViewPool
  • WaterfrontNone
  • Has PoolYes
  • PoolHeated, Spa
  • Pets AllowedYes

Amenities

Bike - Jog, Picnic Area, Sidewalks, Tennis

Utilities

Cable, 3-Phase Electric, Public Sewer, Public Water

Parking

2+ Spaces, Driveway, Garage - Attached

Interior

  • HeatingCentral, Electric
  • CoolingCeiling Fan, Central, Electric
  • # of Stories1
  • Stories1.00

Interior Features

Bar, Built-in Shelves, Closet Cabinets, Ctdrl/Vault Ceilings, Custom Mirror, Entry Lvl Lvng Area, Laundry Tub, Pantry, Roman Tub, Split Bedroom, Upstairs Living Area, Walk-in Closet

Appliances

Dishwasher, Dryer, Fire Alarm, Freezer, Microwave, Range - Electric, Refrigerator, Smoke Detector, Washer

Exterior

  • Lot Description< 1/4 Acre
  • WindowsImpact Glass
  • RoofConcrete Tile
  • ConstructionConcrete

Exterior Features

Auto Sprinkler, Built-in Grill, Covered Patio, Open Balcony, Outdoor Shower

  • Office: Illustrated Properties

Property Location

Please provide a valid email address.

366 Alhambra Pl on www.jupiteroceanfrontcondos.us

Offered at the current list price of $3,300,000, this home for sale at 366 Alhambra Pl features 4 bedrooms and 4 bathrooms. This real estate listing is located in HOMEWOOD WPB IN of West Palm Beach, FL 33405 and is approximately 3,570 square feet. 366 Alhambra Pl is listed under the MLS ID of RX-11099233 and has been available through www.jupiteroceanfrontcondos.us for the West Palm Beach real estate market for 162 days.

Facts About West Palm Beach, FL

One of West Palm Beach's favorite venues for a cold drink and some nice South Florida relaxation is E.R. Bradley's Saloon. This open air restaurant is a frequent stop for both locals and tourists.

Raymond F. Kravis Center for the Performing Arts is the culture icon for the West Palm Beach Area. This 2000 plus seat venue hosts a treasure of Dance, Music and Dramatic performances each year.

If you are looking for some vibrant nightlife in West Palm Beach then visit Dr. Feelgood's Rock Bar and Grill. This colorful nightclub was created by Motley Crue’s front man Vince Neil and is a exciting venue for those looking for some great West Palm Beach nightlife.

Similar Listings to 366 Alhambra Pl

Photo of Listing #RX-10977407
  • MLS® #: RX-10977407
  • 100 Bunker Ranch Road
  • West Palm Beach, FL 33405
  • $3,299,000
  • Residential
Add as Favorite
Photo of Listing #RX-11046128
  • MLS® #: RX-11046128
  • 3504 S Olive Av
  • West Palm Beach, FL 33405
  • $3,475,000
  • 4 Bed, 4 Bath, 2,378 SqFt
  • Residential
Add as Favorite
Photo of Listing #RX-11071441
  • MLS® #: RX-11071441
  • 222 Greenwood Drive
  • West Palm Beach, FL 33405
  • $3,290,000
  • 4 Bed, 4 Bath, 2,928 SqFt
  • Residential
Add as Favorite
Photo of Listing #RX-11082318
  • MLS® #: RX-11082318
  • 255 Russlyn Drive
  • West Palm Beach, FL 33405
  • $3,150,000
  • 3 Bed, 3 Bath, 3,106 SqFt
  • Residential
Add as Favorite

All listings featuring the BMLS logo are provided by Beaches MLS Inc. Copyright 2025 Beaches MLS. This information is not verified for authenticity or accuracy and is not guaranteed.
© 2025 Beaches Multiple Listing Service, Inc. All rights reserved.

Listing information last updated on November 22nd, 2025 at 8:17pm CST.