1. Home
  2. Search Listings
  3. 4451 Willow Pond Road #b West Palm Beach, FL - 33417
  • MLS® #: RX-11143159
  • 4451 Willow Pond Road #b
  • West Palm Beach, FL 33417
  • $398,000
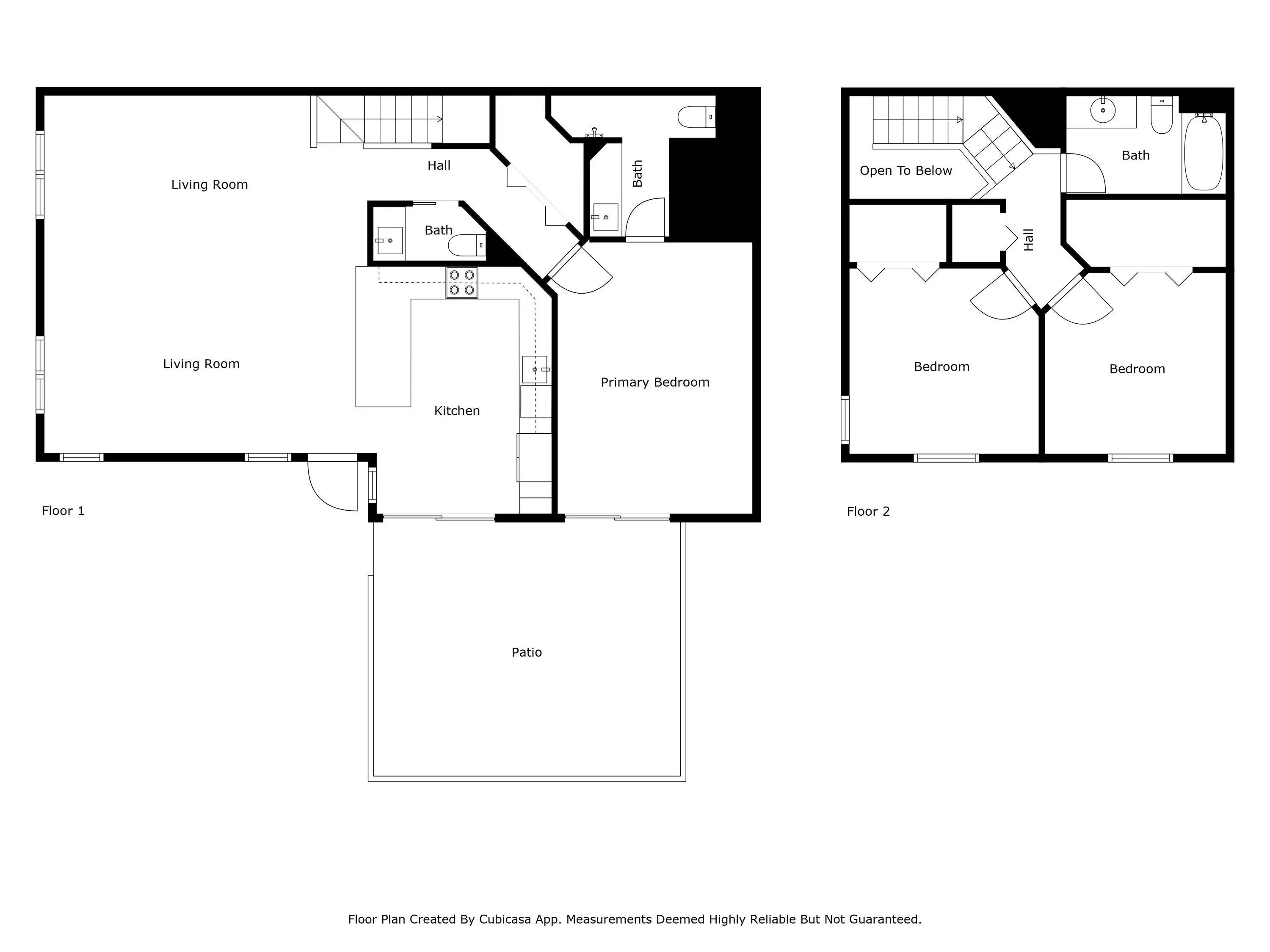
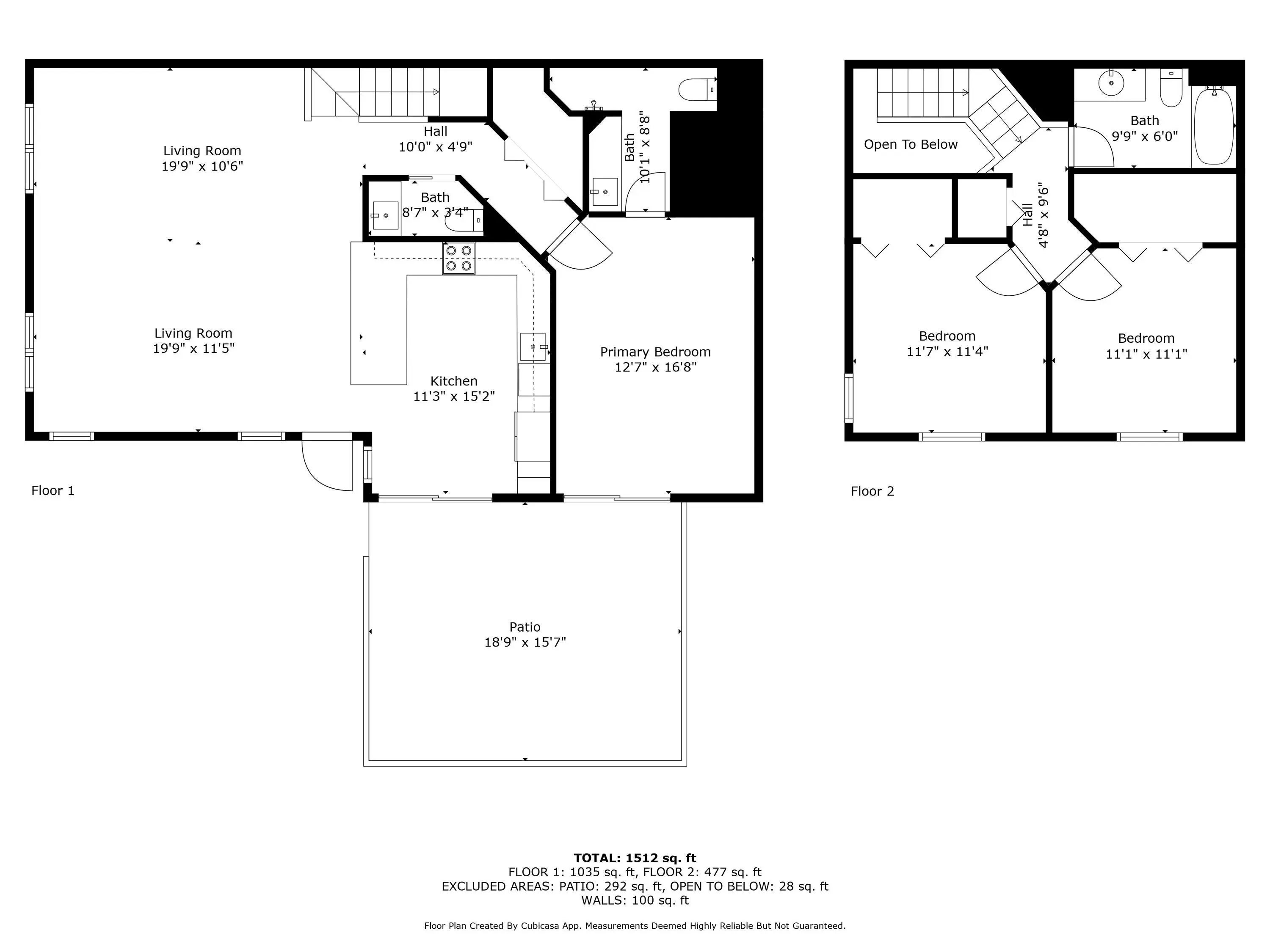
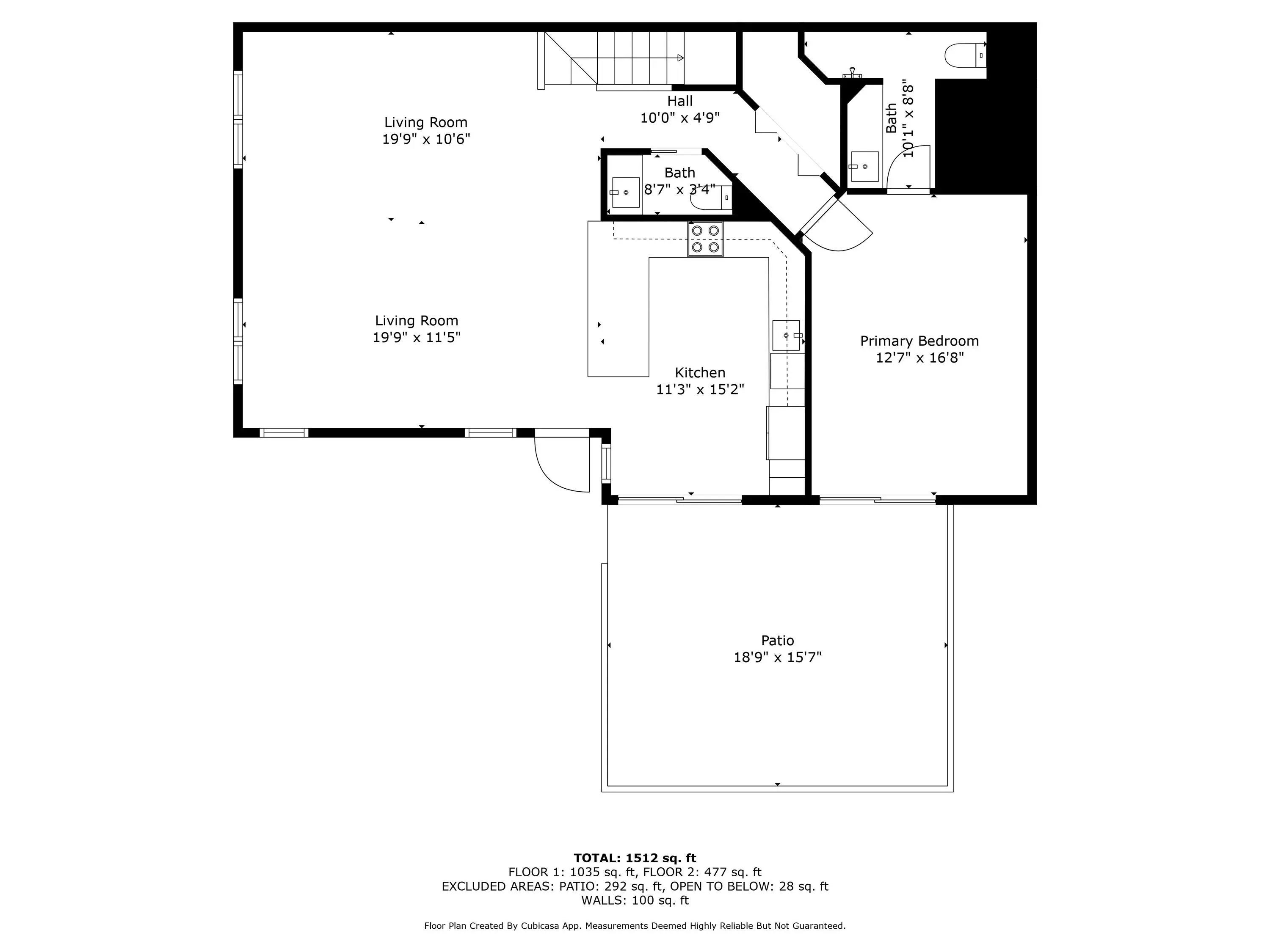
  • 3 Beds, 3 Bath, 1,683 SqFt
  • Residential

With nearly 1,700 sq ft of beautifully redone living space, this 3 bedroom, 2.5 bathroom CBS townhouse lives large, like a single-family home.Every inch has been reimagined: from a new roof to all-new plumbing throughout the entire place, and a layout that flows with ease. The open living, dining, and kitchen area is full of sunlight with soaring ceilings and tranquil lake views. The kitchen is custom-crafted for both beauty and function, featuring quartz countertops, butcher block shelves, and new appliances, all anchored by a spacious island that invites conversation and connection. The primary suite is tucked away on the main floor with private patio access, a generous walk-in closet, and a spa-inspired renovated bathroom with real wood cabinetry, new toilet, new quartz

View Virtual Tour

Essential Information

  • MLS® #RX-11143159
  • Price$398,000
  • CAD Dollar$545,565
  • UK Pound£295,193
  • Euro€338,156
  • HOA Fees460
  • Bedrooms3
  • Bathrooms3.00
  • Full Baths2
  • Half Baths1
  • Square Footage1,683
  • Year Built1986
  • TypeResidential
  • Sub-TypeTownhouse
  • RestrictionsLease OK, Lease OK w/Restrict
  • StylePatio Home, Quad, Townhouse
  • StatusPending
  • HOPANo Hopa

Community Information

  • Address4451 Willow Pond Road #b
  • Area5400
  • SubdivisionLAKESIDE GREEN 5
  • DevelopmentLakeside Green
  • CityWest Palm Beach
  • CountyPalm Beach
  • StateFL
  • Zip Code33417

Amenities

  • ViewLake
  • Is WaterfrontYes
  • WaterfrontLake
  • Pets AllowedYes

Amenities

Clubhouse, Community Room, Fitness Center, Game Room, Library, Manager on Site, Park, Playground, Pool, Sidewalks, Street Lights, Tennis

Utilities

Cable, Electric, Public Sewer, Public Water

Parking

2+ Spaces, Assigned, Deeded, Guest

Interior

  • HeatingCentral
  • CoolingCentral
  • # of Stories2
  • Stories2.00

Interior Features

Ctdrl/Vault Ceilings, Entry Lvl Lvng Area, Kitchen Island, Volume Ceiling, Walk-in Closet

Appliances

Dishwasher, Dryer, Microwave, Range - Electric, Refrigerator, Storm Shutters, Washer, Water Heater - Elec

Exterior

  • Lot Description< 1/4 Acre
  • RoofComp Shingle
  • ConstructionCBS, Stucco

Exterior Features

Auto Sprinkler, Fence, Open Patio, Shutters

School Information

  • MiddleBear Lakes Middle School
  • HighPalm Beach Lakes High School
  • Office: Rinker Realty Inc

Property Location

Please provide a valid email address.

4451 Willow Pond Road #b on www.jupiteroceanfrontcondos.us

Offered at the current list price of $398,000, this home for sale at 4451 Willow Pond Road #b features 3 bedrooms and 3 bathrooms. This real estate listing is located in LAKESIDE GREEN 5 of West Palm Beach, FL 33417 and is approximately 1,683 square feet. 4451 Willow Pond Road #b is listed under the MLS ID of RX-11143159 and has been available through www.jupiteroceanfrontcondos.us for the West Palm Beach real estate market for 91 days.

Facts About West Palm Beach, FL

If you are looking for some vibrant nightlife in West Palm Beach then visit Dr. Feelgood's Rock Bar and Grill. This colorful nightclub was created by Motley Crue’s front man Vince Neil and is a exciting venue for those looking for some great West Palm Beach nightlife.

To enjoy a taste of the local ethnic cuisine that has inspired West Palm Beach since its inception visit Havana. This Cuban-style restaurant features specialties like Cuban coffee, fried churros , exotic fruits and slow roasted Spanish chicken.

The Museum at Ragtops Motorcars is one of West Palm Beach most interesting attractions.  It has housed some of the most interesting 1950s and 1960s memorabilia since it opened in 1908.

Similar Listings to 4451 Willow Pond Road #b

Photo of Listing #RX-11158813
  • MLS® #: RX-11158813
  • 4545 Tara Cove Way
  • West Palm Beach, FL 33417
  • $424,900
  • 3 Bed, 3 Bath, 1,806 SqFt
  • Residential
Add as Favorite
Photo of Listing #RX-11125966
  • MLS® #: RX-11125966
  • 4321 Maybelle Lane
  • West Palm Beach, FL 33417
  • $384,995
  • 3 Bed, 3 Bath, 1,500 SqFt
  • Residential
Add as Favorite
Photo of Listing #A11968019
  • MLS® #: A11968019
  • 4619 Palmbrooke Cir
  • West Palm Beach, FL 33417-7532
  • $365,000
  • 3 Bed, 3 Bath, 1,427 SqFt
  • Residential
Add as Favorite
Photo of Listing #RX-11158499
  • MLS® #: RX-11158499
  • 8682 Crater Terrace
  • West Palm Beach, FL 33403
  • $345,000
  • 3 Bed, 2 Bath, 1,178 SqFt
  • Residential
Add as Favorite

All listings featuring the BMLS logo are provided by Beaches MLS Inc. Copyright 2026 Beaches MLS. This information is not verified for authenticity or accuracy and is not guaranteed.
© 2026 Beaches Multiple Listing Service, Inc. All rights reserved.

Listing information last updated on February 24th, 2026 at 6:32am CST.